If your looking to see how much your property is worth, click below to book your valuation and a memebr of our team will be in touch.
For Sale
Features & Descriptions
-
- Exclusive Brand New Build Houses
- Private Developer With August 2026 Targeted Completion Date
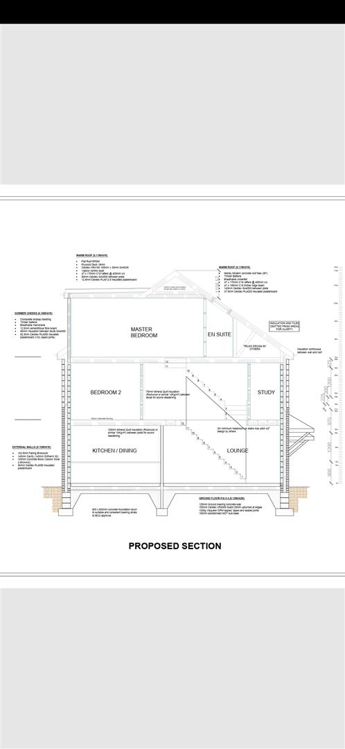
- Three Storey Town House
- Three Bedrooms
- En Suite To Master
-
- Handy Ground Floor WC
- Built To Regulations And NHBC Will Be Provided
- Driveway Parking
- Sought After Location
- RESERVE YOUR PLOT TODAY!
Property Summary
Currently under construction on a lovely spot on New Street in the charming town of St. Helens, this three storey town house presents a unique opportunity to secure one of only four exclusive new build homes. Anticipated for completion in August 2026, this three-storey townhouse is designed to meet modern regulations, ensuring both comfort and safety, with an NHBC certificate provided for your peace of mind.
Plots One & Four are End Town Houses priced at £280,000, plots Two & Three are the Mid-Townhouses priced at £270,000.
Upon entering, you will find a hallway leading to a spacious lounge that flows seamlessly into an open-plan kitchen diner, perfect for entertaining family and friends. The ground floor also features a convenient WC, enhancing the practicality of the living space. Ascending to the first floor, you will discover two well-proportioned bedrooms accompanied by a stylish bathroom. The master bedroom, located on the top floor, boasts an en suite, providing a private retreat for relaxation.
This property is thoughtfully designed with quality fixtures and fittings throughout, ensuring a contemporary and stylish living environment. Additionally, the home offers driveway parking for one vehicle, a valuable feature in this popular location. Families will appreciate the proximity to local schools, making it an ideal choice for those with children.
This is a rare chance to invest in a modern home in a desirable area, combining comfort, convenience, and contemporary living. Don’t miss out on the opportunity to make this exceptional property your own.
Plots One & Four are End Town Houses priced at £280,000, plots Two & Three are the Mid-Townhouses priced at £270,000.
Upon entering, you will find a hallway leading to a spacious lounge that flows seamlessly into an open-plan kitchen diner, perfect for entertaining family and friends. The ground floor also features a convenient WC, enhancing the practicality of the living space. Ascending to the first floor, you will discover two well-proportioned bedrooms accompanied by a stylish bathroom. The master bedroom, located on the top floor, boasts an en suite, providing a private retreat for relaxation.
This property is thoughtfully designed with quality fixtures and fittings throughout, ensuring a contemporary and stylish living environment. Additionally, the home offers driveway parking for one vehicle, a valuable feature in this popular location. Families will appreciate the proximity to local schools, making it an ideal choice for those with children.
This is a rare chance to invest in a modern home in a desirable area, combining comfort, convenience, and contemporary living. Don’t miss out on the opportunity to make this exceptional property your own.
View floor plans
Stamp Duty Calculator

Similar Properties
Find Us
Array
(
[address] => Old Smithy, Church Road, Rainford, Saint Helens, UK
[lat] => 53.4990344
[lng] => -2.7857262
[zoom] => 15
[place_id] => ChIJg650hiUae0gReE_sgPzeGXM
[name] => Old Smithy
[street_name] => Church Road
[street_name_short] => Church Rd
[city] => Rainford
[state] => England
[post_code] => WA11 8HD
[country] => United Kingdom
[country_short] => GB
)
Array
(
[address] => 73 Corporation Street, St Helens WA10 1SX, UK
[lat] => 53.4543848
[lng] => -2.7368345
[zoom] => 14
[place_id] => ChIJQRtSengbe0gRpCQsghlWGFk
[name] => 73 Corporation St
[street_number] => 73
[street_name] => Corporation Street
[street_name_short] => Corporation St
[city] => St Helens
[state] => England
[post_code] => WA10 1SX
[country] => United Kingdom
[country_short] => GB
)
Array
(
[address] => 497 Warrington Road, Rainhill, Prescot L35 0LR, UK
[lat] => 53.4166566
[lng] => -2.766208
[zoom] => 14
[place_id] => ChIJc2FZZzkce0gRs_xZn5A-2Ts
[name] => 497 Warrington Rd
[street_number] => 497
[street_name] => Warrington Road
[street_name_short] => Warrington Rd
[city] => Prescot
[state] => England
[post_code] => L35 0LR
[country] => United Kingdom
[country_short] => GB
)

















