If your looking to see how much your property is worth, click below to book your valuation and a memebr of our team will be in touch.
Sold STC
Features & Descriptions
-
- Stunning Mid Terrace
- Spacious Room Sizes Throughout
- Log Burner Fireplace To Lounge
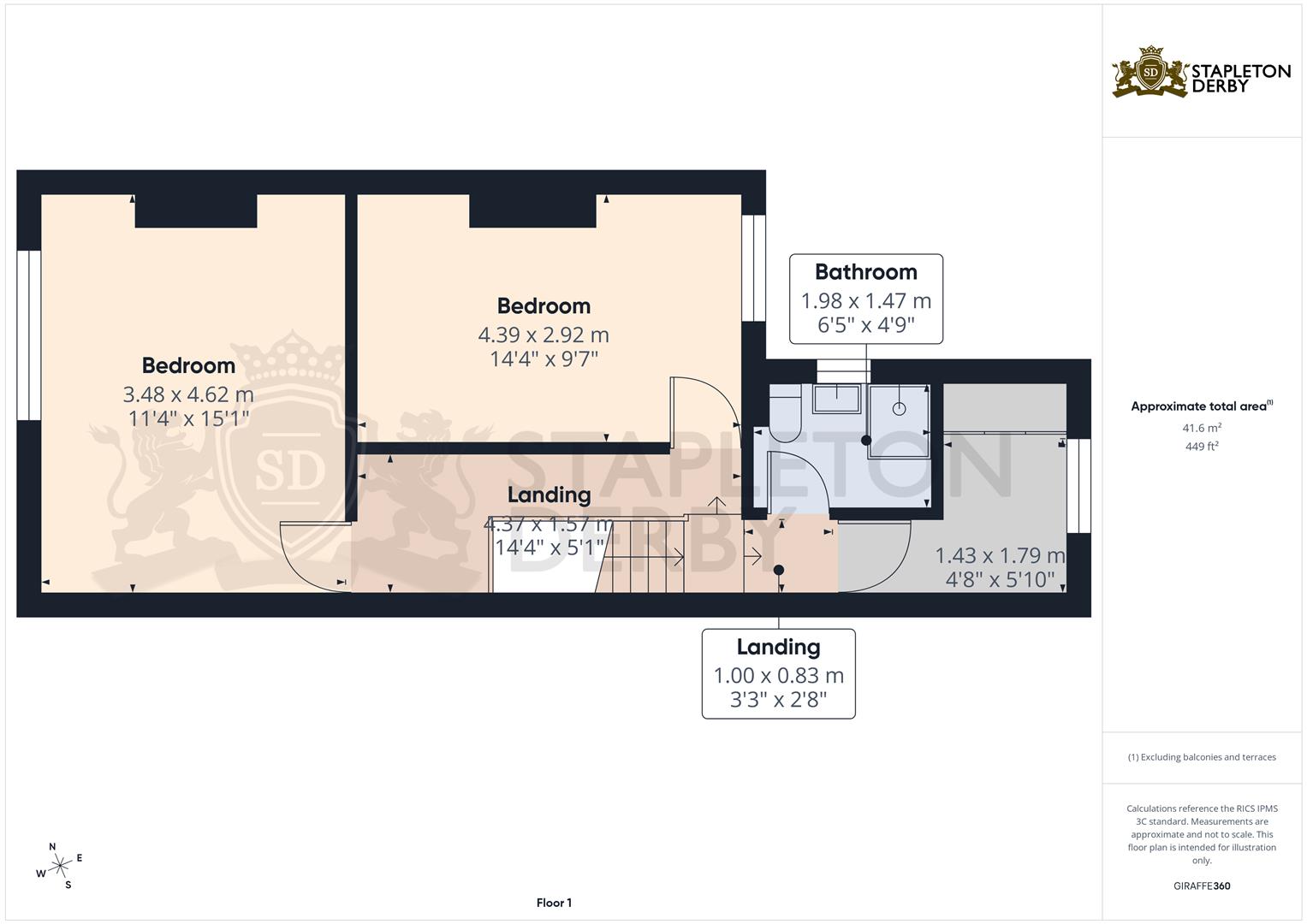
- Three Bedrooms To First Floor
- Low Maintenance Gardens To Front & Rear
-
- Two Reception Rooms
- Modern Kitchen With Integrated Oven & Hob
- Close To Schools & Amenities
- Great For Transport Links
- EPC - C
Property Summary
Nestled on Rivington Road in the heart of St. Helens, this stunning mid-terrace house is a true gem, offering a perfect blend of modern living and traditional charm. With two spacious reception rooms, this property is designed for both comfort and style. The welcoming hallway leads you into a delightful dining room, while the inviting living room features a log burner fire, creating a warm and cosy atmosphere for those chilly evenings.
The modern kitchen is well-equipped and provides a functional space for culinary enthusiasts. Upstairs, you will find two generously sized bedrooms, plus a third currently used for storage, along with a contemporary shower room that adds to the convenience of this lovely home.
The low-maintenance rear garden is a fantastic feature, providing a private outdoor space perfect for relaxation or entertaining guests. This property is an ideal choice for first-time buyers looking to settle in a vibrant community.
Additionally, the location is superb, with schools and local amenities just a stone's throw away, making it a practical choice for families and professionals alike. This beautifully presented home is ready to welcome its new owners, offering a wonderful opportunity to enjoy comfortable living in a sought-after area. Don't miss the chance to make this charming property your own.
The modern kitchen is well-equipped and provides a functional space for culinary enthusiasts. Upstairs, you will find two generously sized bedrooms, plus a third currently used for storage, along with a contemporary shower room that adds to the convenience of this lovely home.
The low-maintenance rear garden is a fantastic feature, providing a private outdoor space perfect for relaxation or entertaining guests. This property is an ideal choice for first-time buyers looking to settle in a vibrant community.
Additionally, the location is superb, with schools and local amenities just a stone's throw away, making it a practical choice for families and professionals alike. This beautifully presented home is ready to welcome its new owners, offering a wonderful opportunity to enjoy comfortable living in a sought-after area. Don't miss the chance to make this charming property your own.
View floor plans
Stamp Duty Calculator

Similar Properties
Find Us
Array
(
[address] => Old Smithy, Church Road, Rainford, Saint Helens, UK
[lat] => 53.4990344
[lng] => -2.7857262
[zoom] => 15
[place_id] => ChIJg650hiUae0gReE_sgPzeGXM
[name] => Old Smithy
[street_name] => Church Road
[street_name_short] => Church Rd
[city] => Rainford
[state] => England
[post_code] => WA11 8HD
[country] => United Kingdom
[country_short] => GB
)
Array
(
[address] => 73 Corporation Street, St Helens WA10 1SX, UK
[lat] => 53.4543848
[lng] => -2.7368345
[zoom] => 14
[place_id] => ChIJQRtSengbe0gRpCQsghlWGFk
[name] => 73 Corporation St
[street_number] => 73
[street_name] => Corporation Street
[street_name_short] => Corporation St
[city] => St Helens
[state] => England
[post_code] => WA10 1SX
[country] => United Kingdom
[country_short] => GB
)
Array
(
[address] => 497 Warrington Road, Rainhill, Prescot L35 0LR, UK
[lat] => 53.4166566
[lng] => -2.766208
[zoom] => 14
[place_id] => ChIJc2FZZzkce0gRs_xZn5A-2Ts
[name] => 497 Warrington Rd
[street_number] => 497
[street_name] => Warrington Road
[street_name_short] => Warrington Rd
[city] => Prescot
[state] => England
[post_code] => L35 0LR
[country] => United Kingdom
[country_short] => GB
)































