If your looking to see how much your property is worth, click below to book your valuation and a memebr of our team will be in touch.
Sold STC
Features & Descriptions
-
- Beautiful Semi Detached Home
- Two Spacious Bedrooms
- Open Plan Kitchen Diner
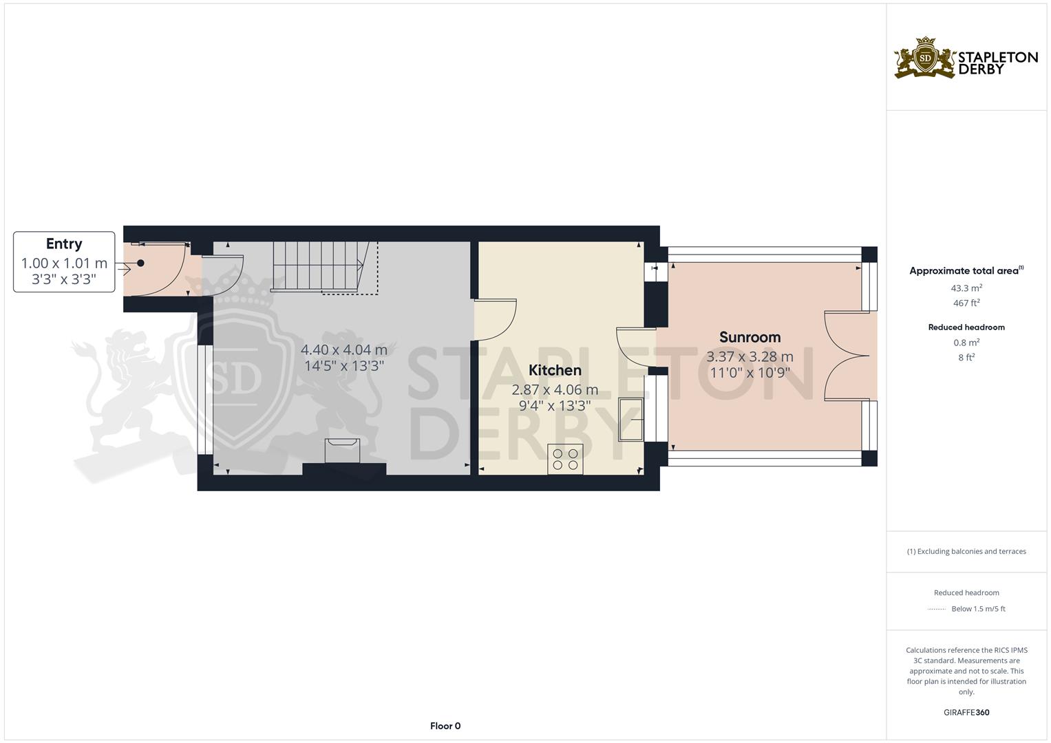
- Conservatory
- Three Car Plus Driveway
-
- Cul De Sac Location
- Very Well Presented
- Close To Schools, Amenities & Transport Links
- No Onward Chain
- EPC - C
Property Summary
Peacefully tucked away in the tranquil cul-de-sac of Wood Vale, St. Helens, this charming semi-detached house presents an excellent opportunity for first-time buyers. With two spacious double bedrooms and a well-appointed bathroom featuring a modern white suite, this property is both practical and inviting.
The ground floor boasts a welcoming porch that leads into a comfortable lounge, perfect for relaxation. The kitchen diner is ideal for family meals and entertaining, while the conservatory offers a delightful space to enjoy the garden views throughout the seasons. The property benefits from front and rear gardens, with the rear garden being particularly appealing as it is not overlooked, providing a sense of privacy. The outdoor space includes a patio area and a lawn, perfect for enjoying sunny days as it always has the sun until late evening.
Parking is a breeze with a driveway that comfortably accommodates up to three vehicles, complete with an electric vehicle charger for added convenience. The location is superb, with easy access to local schools, amenities, and excellent transport links, making it a practical choice for families and commuters alike.
This property is presented in turn-key condition, meaning it is ready for you to move in without any hassle. With no onward chain, you can enjoy a smooth transition into your new home. This semi-detached house is not just a property; it is a place where you can create lasting memories. Don’t miss the chance to make it your own.
The ground floor boasts a welcoming porch that leads into a comfortable lounge, perfect for relaxation. The kitchen diner is ideal for family meals and entertaining, while the conservatory offers a delightful space to enjoy the garden views throughout the seasons. The property benefits from front and rear gardens, with the rear garden being particularly appealing as it is not overlooked, providing a sense of privacy. The outdoor space includes a patio area and a lawn, perfect for enjoying sunny days as it always has the sun until late evening.
Parking is a breeze with a driveway that comfortably accommodates up to three vehicles, complete with an electric vehicle charger for added convenience. The location is superb, with easy access to local schools, amenities, and excellent transport links, making it a practical choice for families and commuters alike.
This property is presented in turn-key condition, meaning it is ready for you to move in without any hassle. With no onward chain, you can enjoy a smooth transition into your new home. This semi-detached house is not just a property; it is a place where you can create lasting memories. Don’t miss the chance to make it your own.
View floor plans
Stamp Duty Calculator

Similar Properties
Find Us
Array
(
[address] => Old Smithy, Church Road, Rainford, Saint Helens, UK
[lat] => 53.4990344
[lng] => -2.7857262
[zoom] => 15
[place_id] => ChIJg650hiUae0gReE_sgPzeGXM
[name] => Old Smithy
[street_name] => Church Road
[street_name_short] => Church Rd
[city] => Rainford
[state] => England
[post_code] => WA11 8HD
[country] => United Kingdom
[country_short] => GB
)
Array
(
[address] => 73 Corporation Street, St Helens WA10 1SX, UK
[lat] => 53.4543848
[lng] => -2.7368345
[zoom] => 14
[place_id] => ChIJQRtSengbe0gRpCQsghlWGFk
[name] => 73 Corporation St
[street_number] => 73
[street_name] => Corporation Street
[street_name_short] => Corporation St
[city] => St Helens
[state] => England
[post_code] => WA10 1SX
[country] => United Kingdom
[country_short] => GB
)
Array
(
[address] => 497 Warrington Road, Rainhill, Prescot L35 0LR, UK
[lat] => 53.4166566
[lng] => -2.766208
[zoom] => 14
[place_id] => ChIJc2FZZzkce0gRs_xZn5A-2Ts
[name] => 497 Warrington Rd
[street_number] => 497
[street_name] => Warrington Road
[street_name_short] => Warrington Rd
[city] => Prescot
[state] => England
[post_code] => L35 0LR
[country] => United Kingdom
[country_short] => GB
)




















